This home is priced to sell and available for immediate occupancy. Don't miss out on this charming Split Foyer Home with Modern Updates in a Prime Jay Location! This beautifully renovated residence sits in a quiet neighborhood, not far from Augusta, Farmington, and Auburn. Enjoy easy access to schools, grocery stores, and restaurants-all within walking distance. Updates include a new appliances, new asphalt roof, vinyl siding, fresh paint, new flooring, and a modern kitchen. Modern systems feature new electrical wiring with 200 amp service, a high-efficiency heat pump water heater, and two heat pumps for year-round comfort. The lower level offers a spacious family room, laundry, utility room, and potential for additional living space. With four bedrooms, two full baths, and room for a fifth, this home offers plenty of space to grow. Additional highlights include a paved driveway, wood stove hookup, and sliding glass door from the dining area to the backyard. Basement is partially unfinished. Eager to move forward-schedule your showing today!

Listing Tools

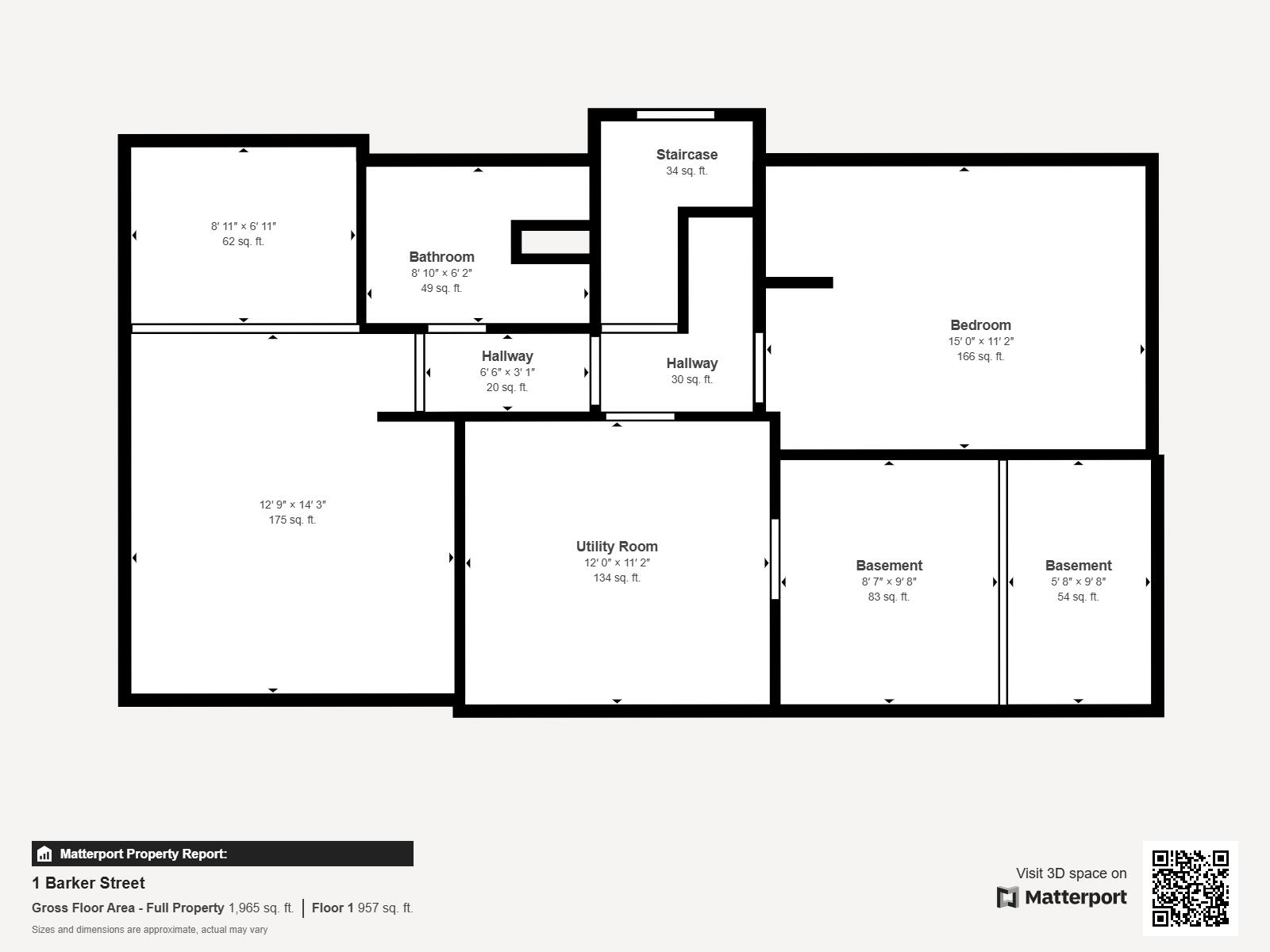
Property Details of 1 Barker Street

Property Details

Interior Features

Exterior Features

Utilities and Appliances

Map Location

Driving Directions

Listing data is derived in whole or in part from the Maine IDX & is for consumers' personal, non commercial use only. Dimensions are approximate and not guaranteed. All data should be independently verified. ©2025 Maine Real Estate Information System, Inc. All Rights Reserved. equal opportunity housing logo   Privacy Policy

Allied Realty participates in ©2025 Maine Listings Internet Data Exchange program, allowing us to display other Maine IDX Participants' listings. This website does not display complete listings. Certain listings of other real estate brokerage firms have been excluded. Mortgage figures are estimates. Check with your bank or proposed mortgage company for actual interest rates. This product uses the FRED® API but is not endorsed or certified by the Federal Reserve Bank of St. Louis.

Hi there! How can we help you?

Contact us using the form below or give us a call.

Send Us A Message:

I agree to receive marketing and customer service calls and text messages from Allied Realty. To opt out, you can reply 'stop' at any time or click the unsubscribe link in the emails. Consent is not a condition of purchase. Msg/data rates may apply. Msg frequency varies. Privacy Policy.

Do not fill in this field:

This site is protected by reCAPTCHA and the Google Privacy Policy and Terms of Service apply.