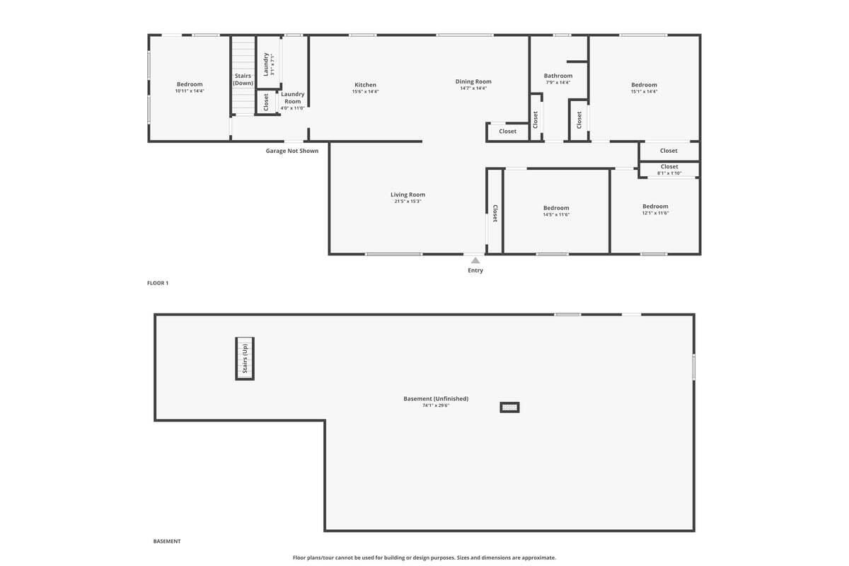
PRICE ADJUSTMENT! Welcome to 15 Gayton Road in Lisbon, Maine! This spacious 3-bedroom, 1-bathroom home offers over 1,800 square feet of comfortable living space and sits on 2 acres of land, providing plenty of room to enjoy outdoors and a peaceful country setting. Inside, you'll find an open-concept kitchen and dining area that creates an inviting space for gatherings and everyday living. Just off the kitchen, a versatile bonus room offers even more flexibility-perfect for a home office, playroom, or cozy den-and provides direct access to the freshly repainted back deck. Many rooms throughout the home have been recently repainted, adding a bright and welcoming feel. The large basement offers great potential to be finished into additional living space, ideal for a family room, gym, or workshop. Outside, enjoy the expansive fully fenced-in back yard and a two-car garage providing convenient parking and extra storage. The home has been virtually staged to highlight its true potential and showcase how beautifully the space can be utilized. Conveniently located just a short drive from Lewiston and Auburn, and less than 20 minutes from Topsham and Brunswick, this home offers easy access to shopping, dining, and local amenities while being tucked away in a quiet, residential area. If you're looking for a home with space, flexibility, and a fantastic location, 15 Gayton Road is ready to welcome you. Schedule your private showing today!

Listing Tools

Property Details of 15 Gayton Road

Property Details

Interior Features

Utilities and Appliances

Map Location

Driving Directions

Listing data is derived in whole or in part from the Maine IDX & is for consumers' personal, non commercial use only. Dimensions are approximate and not guaranteed. All data should be independently verified. ©2025 Maine Real Estate Information System, Inc. All Rights Reserved. equal opportunity housing logo   Privacy Policy

Allied Realty participates in ©2025 Maine Listings Internet Data Exchange program, allowing us to display other Maine IDX Participants' listings. This website does not display complete listings. Certain listings of other real estate brokerage firms have been excluded. Mortgage figures are estimates. Check with your bank or proposed mortgage company for actual interest rates. This product uses the FRED® API but is not endorsed or certified by the Federal Reserve Bank of St. Louis.

Hi there! How can we help you?

Contact us using the form below or give us a call.

Send Us A Message:

I agree to receive marketing and customer service calls and text messages from Allied Realty. To opt out, you can reply 'stop' at any time or click the unsubscribe link in the emails. Consent is not a condition of purchase. Msg/data rates may apply. Msg frequency varies. Privacy Policy.

Do not fill in this field:

This site is protected by reCAPTCHA and the Google Privacy Policy and Terms of Service apply.