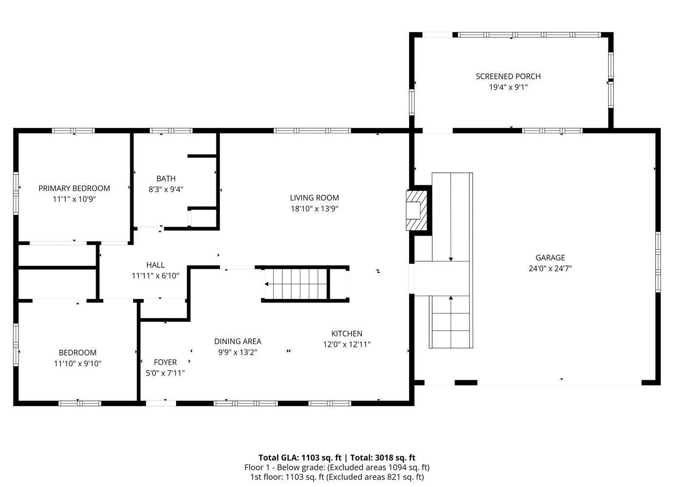
Enjoy waterfront living nestled on the Sebasticook river in this ranch home on a private 1.1 acre lot. Enjoy your private waterfront with 100 feet of frontage on this scenic waterway perfect for kayaking,fishing,and relaxing by the water.Paddle along and explore and see the abundant wildlife .The 20.9 by 10 .6 sunroom faces the river and offers a peaceful spot to enjoy this view with morning coffee and evening sunsets This 2 bedroom 1 and 1/2 bath Ranch has all that you would ask for with 1100 square feet of living . True one level living with direct entry from the Two car garage and first floor laundry .Inside, the home is bright and inviting with large windows that fill the space with natural light . The large living room is 18.10 by 13.9 has a brick fireplace and al;so overlooks ther backyard and river . The spacious kitchen has numerous wood cabinetry and the large kitchen sink welcomed by all with cabinets galore. The adjacent dining area is ideal for family meals or entertaining .The primary bedroom has a heat -air pump and the living room has an in-wall air conditioner .This with ceiling fans in both bedrooms provides a cool home year round . The main bathroom features a step in shower with sliding doors and a handheld sprayer ,perfect for daily use and the fan also has electric downward heat.The partially finished basement is another 1094 square feet of space and in the past had a bedroom here, has a half bath and has heat on one side . Easy to finish for whatever you want and add another 500 square feet of living space ,Bedroom ,family room or exercise area. A walkout dog house door provides easy access and safety to the back yard .The other large basement area is a great workshop and storage area and is 37.5 by 13.2. The oversized garage presently has a ramp for easy access to the home and storage overhead,.This welcoming home blends affordable waterfront living with low taxes, metal roof ,vinyl siding and on demand whole house generator.

Listing Tools

Property Details of 158 Pleasant Street

Property Details

Interior Features

Utilities and Appliances

Other Details

Map Location

Driving Directions

Listing data is derived in whole or in part from the Maine IDX & is for consumers' personal, non commercial use only. Dimensions are approximate and not guaranteed. All data should be independently verified. ©2025 Maine Real Estate Information System, Inc. All Rights Reserved. equal opportunity housing logo   Privacy Policy

Allied Realty participates in ©2025 Maine Listings Internet Data Exchange program, allowing us to display other Maine IDX Participants' listings. This website does not display complete listings. Certain listings of other real estate brokerage firms have been excluded. Mortgage figures are estimates. Check with your bank or proposed mortgage company for actual interest rates. This product uses the FRED® API but is not endorsed or certified by the Federal Reserve Bank of St. Louis.

Hi there! How can we help you?

Contact us using the form below or give us a call.

Send Us A Message:

I agree to receive marketing and customer service calls and text messages from Allied Realty. To opt out, you can reply 'stop' at any time or click the unsubscribe link in the emails. Consent is not a condition of purchase. Msg/data rates may apply. Msg frequency varies. Privacy Policy.

Do not fill in this field:

This site is protected by reCAPTCHA and the Google Privacy Policy and Terms of Service apply.