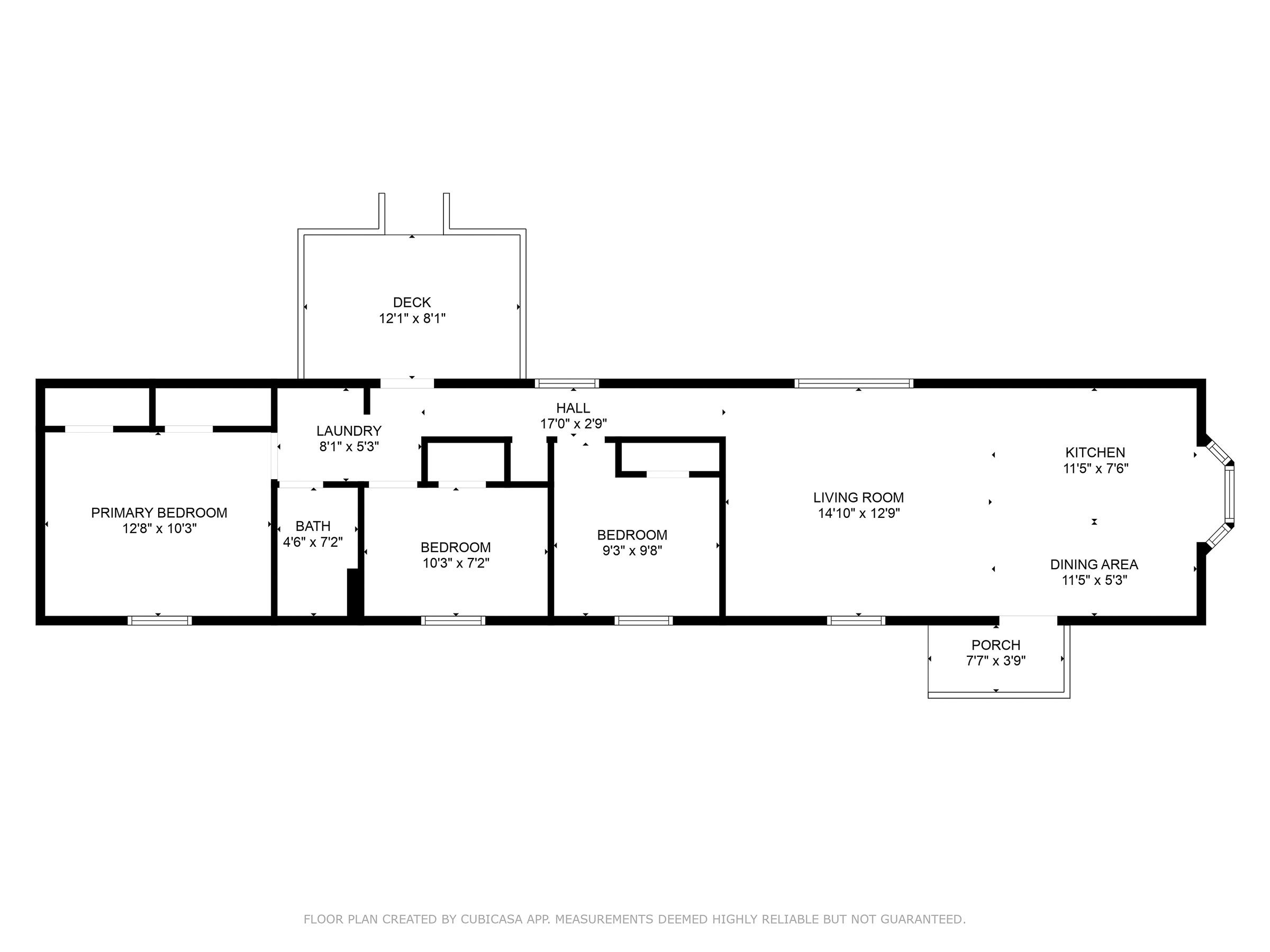
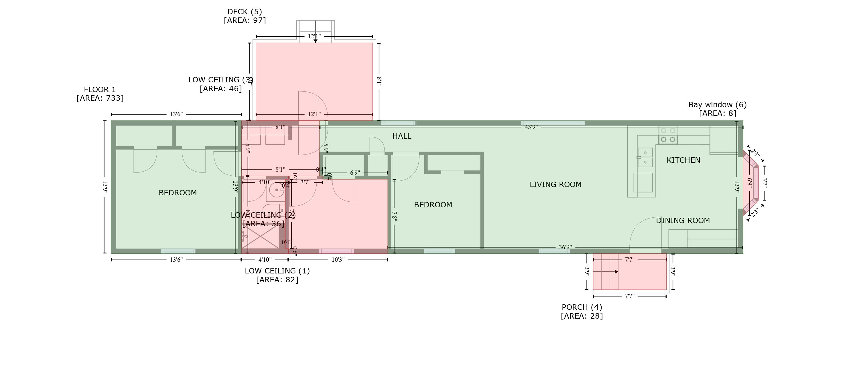
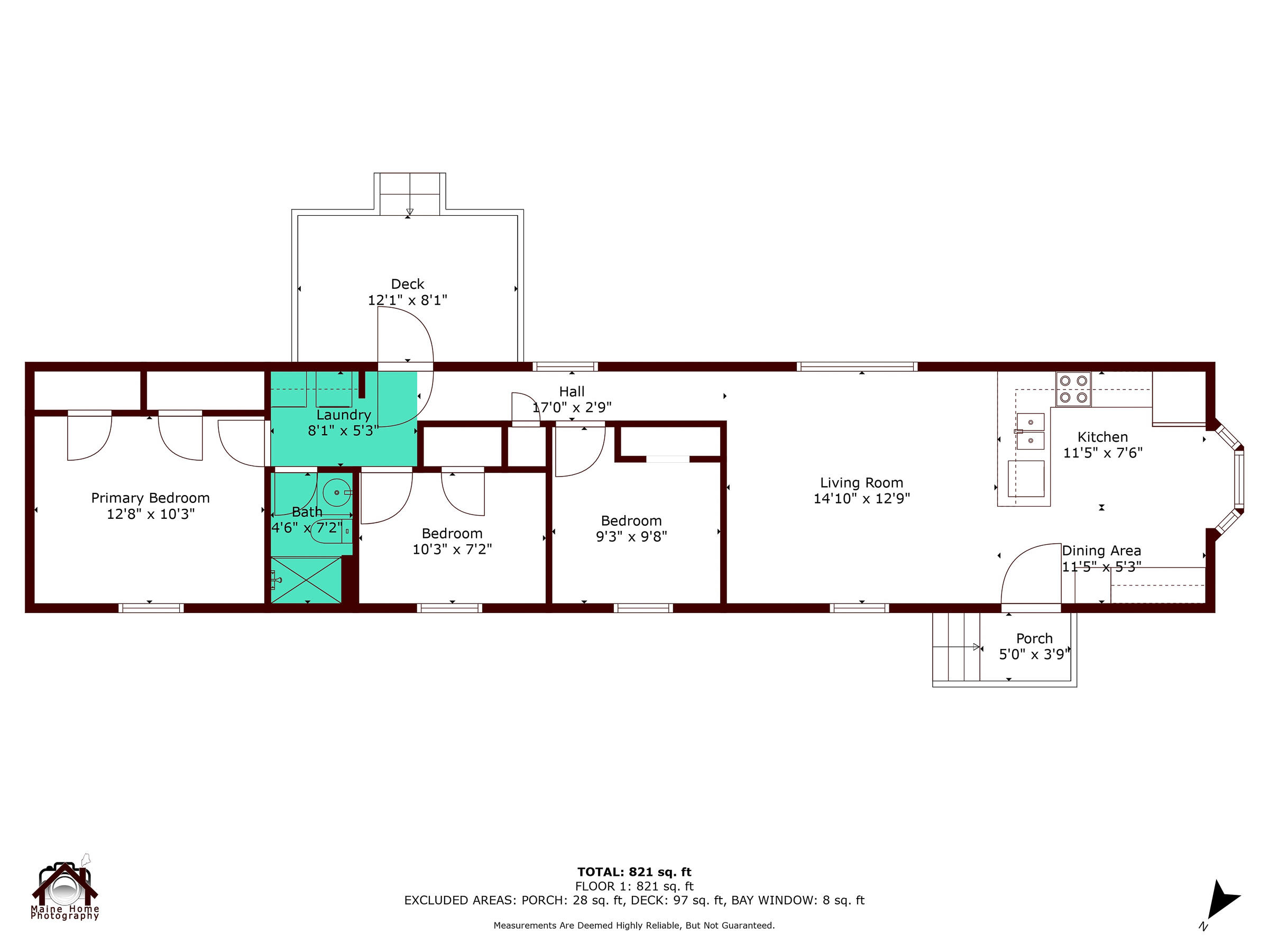
Motivated seller....Location Location Location ! Investors take Notice....In town Farmington 3 bedroom one bath remodeled mobile home on a choice lot. . This .85 acre level; lot presently has one mobile home on it . A lovely setting and as big back deck to enjoy family activities and grilling . Spacious back yard and this lot is bordered with nice trees with plenty of shade when you do not want to sunbath .Perfect spot for your garden and plenty of room for games. Two entrances and a circular drive Another gravel pad is ready for another mobile home . In fact with the public water and sewer this flat level lot can accommodate up to six mobile homes. There is also a camper electrical hook up in the back of the property. This lot abuts the Farmington Fairgrounds. This location is ideal with close proximity to the University of Maine at Farmington The possibilities are endless as to what you could do with the commercial and residential property Use this as your home, Add additional mobile homes for investment and rental income , remove mobile and build an apartment building , duplex, or single family homes .

Listing Tools

Property Details of 175-179 Maple Avenue

Property Details

Interior Features

Exterior Features

Utilities and Appliances

Map Location

Driving Directions

Listing data is derived in whole or in part from the Maine IDX & is for consumers' personal, non commercial use only. Dimensions are approximate and not guaranteed. All data should be independently verified. ©2026 Maine Real Estate Information System, Inc. All Rights Reserved. equal opportunity housing logo   Privacy Policy

Allied Realty participates in ©2026 Maine Listings Internet Data Exchange program, allowing us to display other Maine IDX Participants' listings. This website does not display complete listings. Certain listings of other real estate brokerage firms have been excluded. Mortgage figures are estimates. Check with your bank or proposed mortgage company for actual interest rates. This product uses the FRED® API but is not endorsed or certified by the Federal Reserve Bank of St. Louis.

Hi there! How can we help you?

Contact us using the form below or give us a call.

Send Us A Message:

I agree to receive marketing and customer service calls and text messages from Allied Realty. To opt out, you can reply 'stop' at any time or click the unsubscribe link in the emails. Consent is not a condition of purchase. Msg/data rates may apply. Msg frequency varies. Privacy Policy.

Do not fill in this field:

This site is protected by reCAPTCHA and the Google Privacy Policy and Terms of Service apply.