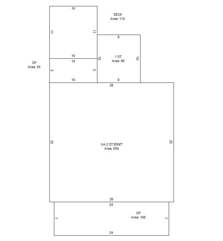
0412 Brand new furnace and oil tank installed September 2025 A rare opportunity to own this charming 1920s+/- home. You will love to sit and relax on the front porch, while enjoying the beautifully landscaped yard. Step inside and enjoy hard wood floors the nostalgia of the time period, offering 3 bedrooms, 1 full bath, kitchen, dining room and living room. 1 car garage also you will enjoy a new just installed Sept 2025 furnace & oil tank

Listing Tools

Property Details of 26 Bemis Street

Property Details

Interior Features

Exterior Features

Utilities and Appliances

Map Location

Driving Directions

Listing data is derived in whole or in part from the Maine IDX & is for consumers' personal, non commercial use only. Dimensions are approximate and not guaranteed. All data should be independently verified. ©2026 Maine Real Estate Information System, Inc. All Rights Reserved. equal opportunity housing logo   Privacy Policy

Allied Realty participates in ©2026 Maine Listings Internet Data Exchange program, allowing us to display other Maine IDX Participants' listings. This website does not display complete listings. Certain listings of other real estate brokerage firms have been excluded. Mortgage figures are estimates. Check with your bank or proposed mortgage company for actual interest rates. This product uses the FRED® API but is not endorsed or certified by the Federal Reserve Bank of St. Louis.

Hi there! How can we help you?

Contact us using the form below or give us a call.

Send Us A Message:

I agree to receive marketing and customer service calls and text messages from Allied Realty. To opt out, you can reply 'stop' at any time or click the unsubscribe link in the emails. Consent is not a condition of purchase. Msg/data rates may apply. Msg frequency varies. Privacy Policy.

Do not fill in this field:

This site is protected by reCAPTCHA and the Google Privacy Policy and Terms of Service apply.