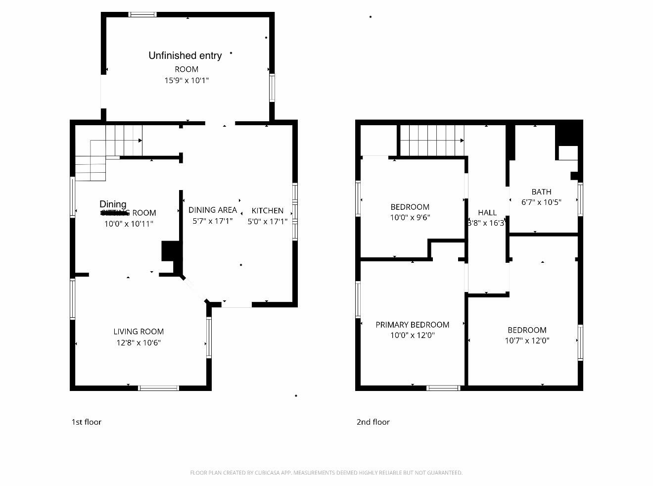
Welcome to this three-bedroom, one-bathroom home located on a spacious open corner lot in the heart of Guilford. Inside, you will find beautiful hardwood flooring throughout and a functional layout perfect for both every day living and entertaining. The first floor offers an unfinished entryway, perfect for storing shoes, jackets or seasonal gear, along with the kitchen, formal dining room, and comfortable living room. Upstairs, the second floor features three adequately sized bedrooms and one fully updated bathroom. The basement is poured concrete, clean and dry, offering ample storage space. The roof was newly shingled in the past five years providing peace of mind for years to come. This home is within walking distance to the mills and conveniently located near shopping, schools, and local amenities, making it an excellent first home or rental opportunity! All contents in the home will convey, so just bring your clothes and some food and move right in! The garage will be torn down by sellers due to disarray as well as the small white building next door. Snowmobile trail is accessible right up the road.

Listing Tools

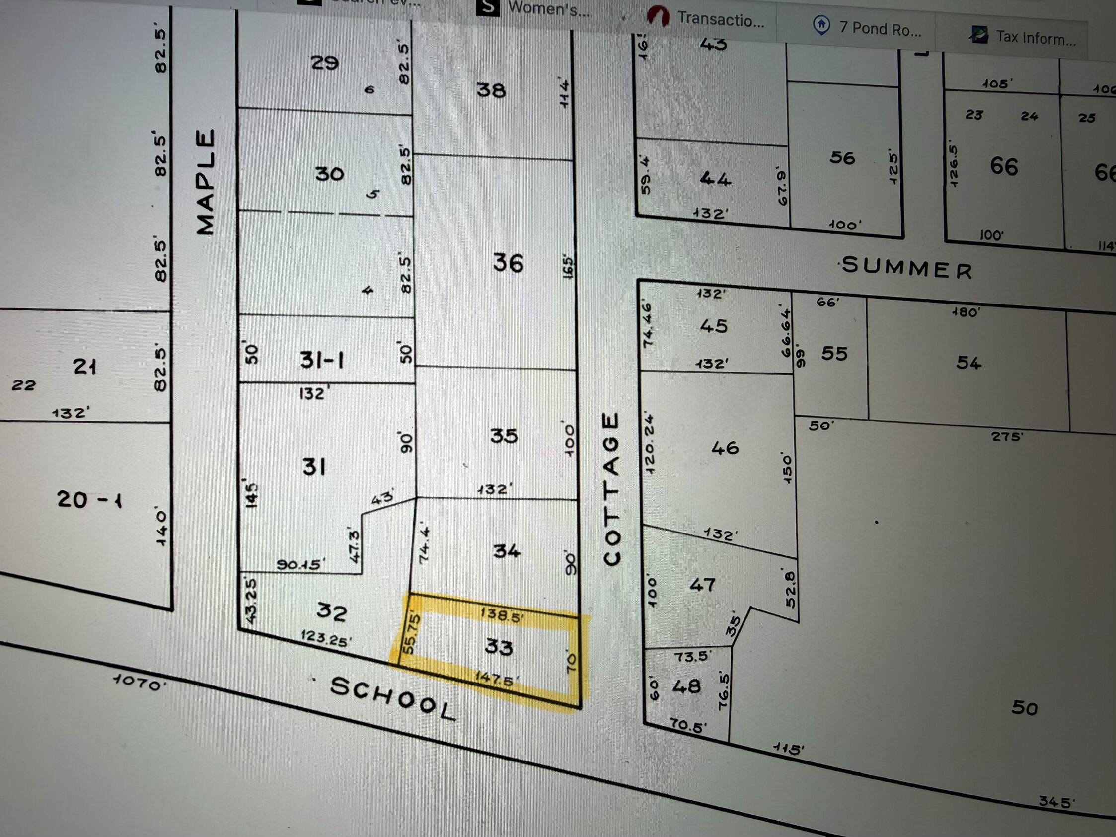
Property Details of 27 School Street

Property Details

Interior Features

Utilities and Appliances

Map Location

Driving Directions

Listing data is derived in whole or in part from the Maine IDX & is for consumers' personal, non commercial use only. Dimensions are approximate and not guaranteed. All data should be independently verified. ©2026 Maine Real Estate Information System, Inc. All Rights Reserved. equal opportunity housing logo   Privacy Policy

Allied Realty participates in ©2026 Maine Listings Internet Data Exchange program, allowing us to display other Maine IDX Participants' listings. This website does not display complete listings. Certain listings of other real estate brokerage firms have been excluded. Mortgage figures are estimates. Check with your bank or proposed mortgage company for actual interest rates. This product uses the FRED® API but is not endorsed or certified by the Federal Reserve Bank of St. Louis.

Hi there! How can we help you?

Contact us using the form below or give us a call.

Send Us A Message:

I agree to receive marketing and customer service calls and text messages from Allied Realty. To opt out, you can reply 'stop' at any time or click the unsubscribe link in the emails. Consent is not a condition of purchase. Msg/data rates may apply. Msg frequency varies. Privacy Policy.

Do not fill in this field:

This site is protected by reCAPTCHA and the Google Privacy Policy and Terms of Service apply.