Discover the epitome of classic New England charm combined with modern elegance in this fully renovated five-bedroom farmhouse, ideal as a primary residence, an idyllic vacation retreat or vacation rental with the attached 1BR In-Law unit. With meticulous attention to detail, this home has undergone a comprehensive transformation featuring new windows, doors, insulation, electrical wiring, plumbing, roofing, heating system, hot water heater, and even a backup generator! Embrace the warmth of the cozy living room, anchored by a wood-burning stove that adds a touch of rustic allure. Entertain guests in the inviting family room, complete with a wet bar and access to the tranquil rear patio. Culinary enthusiasts will revel in the chef's kitchen, boasting leathered granite countertops, an enchanting antique wood-burning stove, and a timeless soapstone farmhouse sink. The dining area is a perfect blend of function and history and country charm. Upstairs, a spacious reading nook and original built-in cabinetry offers a peaceful escape, leading to two guest bedrooms and an opulent primary suite, complete with an office space and a full bath. The charm of the original home is complemented by an attached, all-new in-law unit, adding 1,000 +/- sq ft of living space with its own living area, kitchen with granite counters, full bath, and a bright bedroom with a walk-in closet and laundry room. With one acre of land, this residence offers ample parking for up to six vehicles as well as an attached garage with room for your toys and a farmhouse porch for enjoying a good book and a glass of ice tea. Ideally located within a short drive to Saddleback and downtown Rangeley, it's perfect for multigenerational families, groups of friends, or those seeking a lucrative rental property opportunity. Experience the perfect fusion of historic allure and contemporary living in a serene setting that you'll be proud to call home. Call, text or email today to learn more!

Listing Tools

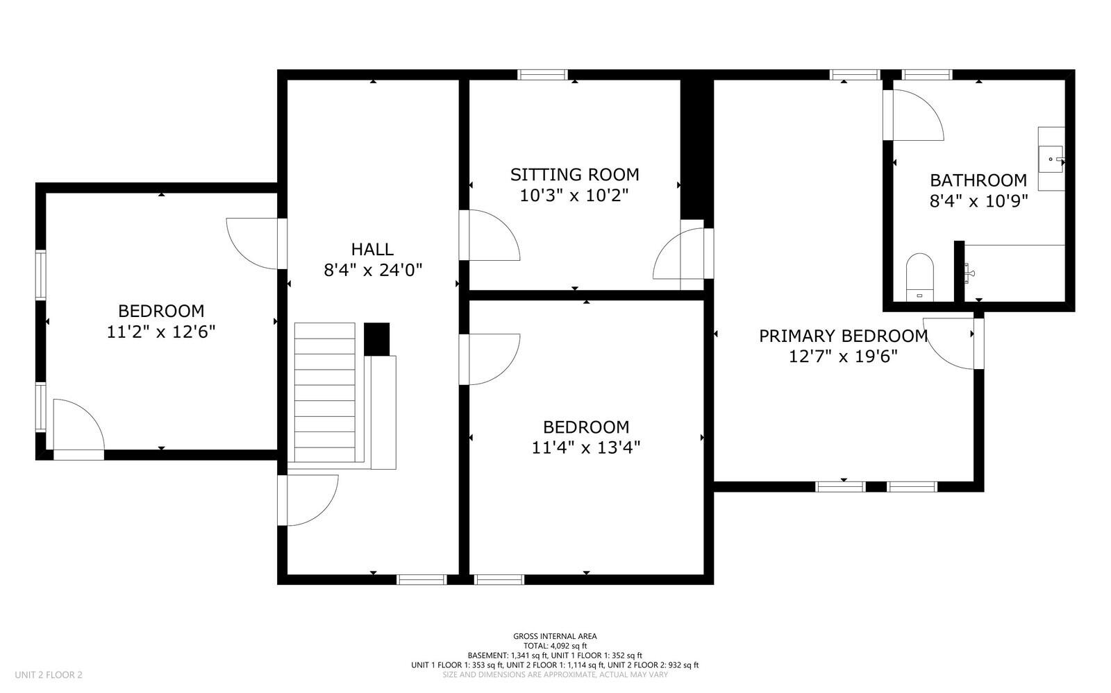
Property Details of 284 Dallas Hill Road

Property Details

Interior Features

Utilities and Appliances

Map Location

Driving Directions

Listing data is derived in whole or in part from the Maine IDX & is for consumers' personal, non commercial use only. Dimensions are approximate and not guaranteed. All data should be independently verified. ©2026 Maine Real Estate Information System, Inc. All Rights Reserved. equal opportunity housing logo   Privacy Policy

Allied Realty participates in ©2026 Maine Listings Internet Data Exchange program, allowing us to display other Maine IDX Participants' listings. This website does not display complete listings. Certain listings of other real estate brokerage firms have been excluded. Mortgage figures are estimates. Check with your bank or proposed mortgage company for actual interest rates. This product uses the FRED® API but is not endorsed or certified by the Federal Reserve Bank of St. Louis.

Hi there! How can we help you?

Contact us using the form below or give us a call.

Send Us A Message:

I agree to receive marketing and customer service calls and text messages from Allied Realty. To opt out, you can reply 'stop' at any time or click the unsubscribe link in the emails. Consent is not a condition of purchase. Msg/data rates may apply. Msg frequency varies. Privacy Policy.

Do not fill in this field:

This site is protected by reCAPTCHA and the Google Privacy Policy and Terms of Service apply.