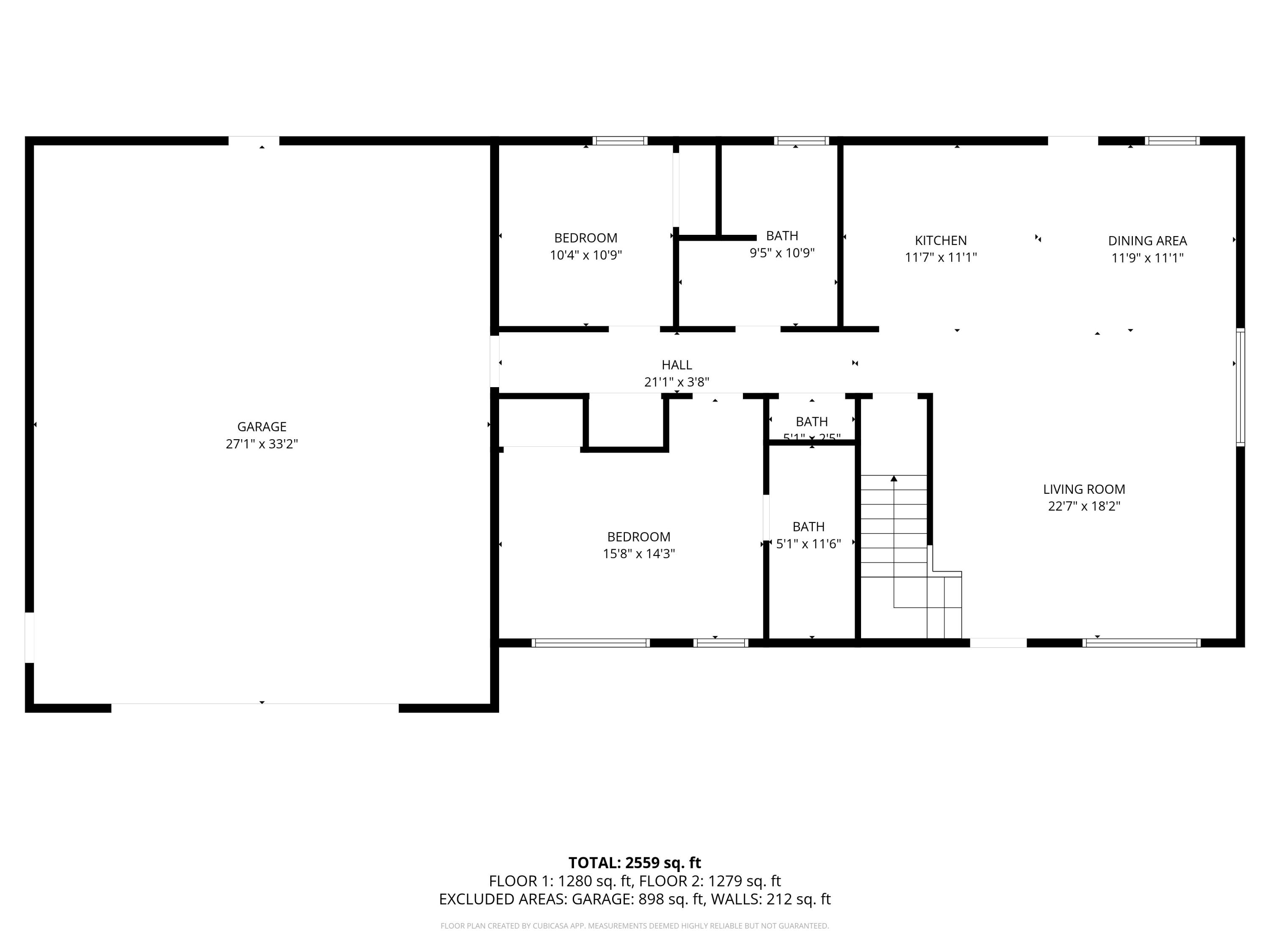
This 3-bedroom, 3-bath home is partially constructed, offering a unique opportunity to bring your vision to life. Located directly across from Springbrook Golf Club, you'll enjoy both the tranquility of a rural setting with deer sightings from your window and immediate access to recreational opportunities. Imagine driving your golf cart right across the street to tee off! This thoughtfully designed home prioritizes modern comfort and energy efficiency, boasting radiant heat plumbed into the slab and prepped for heat pump connections. The spacious layout provides ample room to create your ideal living spaces, and essential groundwork is complete with a professionally designed septic system and an installed private well. High-end materials and spray-foam insulation are key features of this quality construction. Additionally, the oversized garage offers ample space for both vehicles and storage. Don't miss this rare opportunity to personalize a home in a prime location and create your perfect living environment. --OPEN HOUSE Sunday, November 9th 1-3pm --

Listing Tools

Property Details of Lot 49a Us Highway 202

Property Details

Interior Features

Utilities and Appliances

Map Location

Driving Directions

Listing data is derived in whole or in part from the Maine IDX & is for consumers' personal, non commercial use only. Dimensions are approximate and not guaranteed. All data should be independently verified. ©2026 Maine Real Estate Information System, Inc. All Rights Reserved. equal opportunity housing logo   Privacy Policy

Allied Realty participates in ©2026 Maine Listings Internet Data Exchange program, allowing us to display other Maine IDX Participants' listings. This website does not display complete listings. Certain listings of other real estate brokerage firms have been excluded. Mortgage figures are estimates. Check with your bank or proposed mortgage company for actual interest rates. This product uses the FRED® API but is not endorsed or certified by the Federal Reserve Bank of St. Louis.

Hi there! How can we help you?

Contact us using the form below or give us a call.

Send Us A Message:

I agree to receive marketing and customer service calls and text messages from Allied Realty. To opt out, you can reply 'stop' at any time or click the unsubscribe link in the emails. Consent is not a condition of purchase. Msg/data rates may apply. Msg frequency varies. Privacy Policy.

Do not fill in this field:

This site is protected by reCAPTCHA and the Google Privacy Policy and Terms of Service apply.